
装修水路要注意些什么?什么是水管打压实验?
水路改造身为隐蔽工程中重要的一环,当然也不能忽视。

一、水路改造
先来看下水路改造的流程:
施工人员对照设计图纸与业主确定定位点→根据线路走向弹线→根据弹线在顶面固定管卡→根据弹线走向开槽→清理渣土→走线→墙顶面水管固定→检查各回路是否有误→对水路进行打压验收测试→封闭水槽→记录水管位置

看起来是不是有点儿懵逼?
上面的操作流程,在实际施工中,绝大部分业主是很难全程监督参与的,即使是少部分有时间的人能够全程参与,没有实际的施工经验,其实也很难分辨出好的施工和坏的施工。
既然看不懂,那就完全放弃,一点儿都不去上心吗?
也不可取。
精简精简再精简的情况下,有一些是一定要花费精力去关注的。
1、点位的确定。
跟水有关的一切设备,包括但不限于洗手盆、淋浴、洗衣机等等,一定要先根据自己的使用习惯,确定它们的摆放位置,以及是不是需要热水。然后跟设计师、工长沟通好。
最好能有纸质的记录,毕竟出现施工差错的时候,你很难跟师傅掰扯清楚,到底是你说错了,还是他记错了。
2、打压试验
就像防水做得好不好,检验的标准很简单,不漏就行,这个检验,就是闭水试验。
同样的,对于水路的施工,也有检验,这个检验就是“打压试验”。
二、打压试验必须做
首先强调下,无论你多忙,都记得去盯一眼打压试验。
不要听某些不良的施工方忽悠,说什么打压试验不重要,你想想,连打压试验都不敢做,你真的能信任他们吗?
1、打压试验是什么?
所谓打压试验,就是在水路的施工完成后,模拟正常用水的时候,水压对水管、接头产生的冲击力。
如果水路的施工没做好,比如水管有问题,或者是管道焊接不严密,在打压试验的时候,就会出现漏水,降压的情况。
所有水路管道全部完成了焊接,水路完工后(一般24小时内),就可以做打压试验了。
2、打压试验标准
既然要打压,肯定需要专业的工具,如下图:

虽然看起来比较简陋,但包含的东西还是蛮多的,有千斤顶、压力表、水箱和软管。
有了工具,那打压的标准是什么呢?
国家标准《建筑给水排水及釆暖工程施工质量验收规范》( GB 50242-2002)规定:“室内给水管道的水压实验必须符合设计要求,当设计未注明时,各种材质的给水管道系统试验压力均为工作压力的1.5倍,但不能小于0.6MPa。”
在实际的操作中呢,一般会把压力表的指针指向0.6-0.8,也就是所谓的六个压-八个压。
时间方面,不同的水管测压时间也不太一样,PPR、铝塑PPR、钢塑PPR等焊接管是30分钟,铝塑管和镀锌管的测压时间是4个小时。
三、水路其他需要注意的问题
打压试验只是水路检验中最基础的一项,也是大家最容易辨别的一项。
除了打压试验,水路方面,其实还有很多需要注意的问题。
1、冷热水管不同槽
在预埋冷、热水管时,冷、热水管需要分开开槽,并且水管之间要保持10cm以上的间隔,以免相互之间产生影响。


2、左热右冷
冷、热水管的安装方向也需要注意,正常应该按照左热右冷来排布冷热水管。

这个想展开一下,业主在群里聊天的时候,经常会吐槽自己家的热水器冷热水管装反了。

这个有可能是工人“心情不好”的杰作,也有可能是热水器的问题。
有一部分热水器(多是燃气热水器),它的构造就是“左冷右热”,这时候跟正常的“左热右冷”一结合,必然会出现“装反了”的情况。
为了避免发生这种错误,在做水电的时候,最好先确定热水器的型号,了解这种热水器的冷热水管的连接方式。
如果是正常的“左热右冷”,则按照正常的“左热右冷”安装。
如果热水器的冷热水管是“左冷右热”,就需要让施工的师傅在热水器水管这一段(其他区域还是需要正常的左热右冷)做一下调整,避免出现“安反了”的情况。
3、给水管固定使用专用吊卡或U型卡(禁止开口朝下)或铜丝固定,吊卡间距符合施工规范

4、混水阀冷热出水孔间距150mm±5mm,标高水平误差≤±2mm


5、预埋冷热出水口必须与墙面水平

6、电管与水管不得同槽敷设

7、不同材质的管线,不能简单使用热熔的方式连接

现在大部分水管都是ppr水管了,混用的情况非常少见,但也不是没有。
有开发商预先做的管子是pb管,后面业主使用的水管材质是ppr,不懂其中玄妙的师傅直接用热熔的方式来连接这两种不同材质的水管,结果就是严重漏水。
两种不同材质的管线,必须要使用转接头才能有效的连接。

四、热水器离卫生间太远
在水路的设计中,很多人可能面临热水器离卫生间太远的情况。
大冬天的,在卫生间洗个脸,放个热水都要三五分钟,还要放掉一大堆水,能忍么?
合理规划热水器的位置、多装一个热水器这种解决方式,比较简单,就不多说了,主要说一下小厨宝和回水系统。
1、小厨宝
早上洗脸刷牙用水量其实不多,就因为卫生间离热水器太远,等那一点点热水就要好几分钟。
没必要多加一个热水器,要是有个小热水器就好了。
小厨宝就是这个小热水器,热水快,容量虽然不大,但足够少量的用水需求了。

从厨宝的名字可以判断,它主要作用于厨房,很少应用在卫生间,介绍小厨宝只是为了给你多一种选择,比如某些复式,楼上楼下都有卫生间,热水器在楼下,离楼上的卫生间太远,早上起床的时候,需要在楼上的卫生间洗漱刷牙,等热水等到心烦,这时候,在楼上的卫生间加个小厨宝,完美解决问题。
不过加了小厨宝,卫生间的电路也需要相应的调整。在没什么大功率电器的情况下,卫生间电路可以用2.5平方线路,如果多加一个小厨宝(看厨宝用电功率),可能就需要4平方的线路,这些都会导致卫生间水电部分费用增加。
位置方面,一般可以把小厨宝放在橱柜、浴室柜的下面。记得在这些地方留一个五孔插座,插座可以自带开关,也可以在其他方便触碰的地方给这个插座做一个串联的开关。

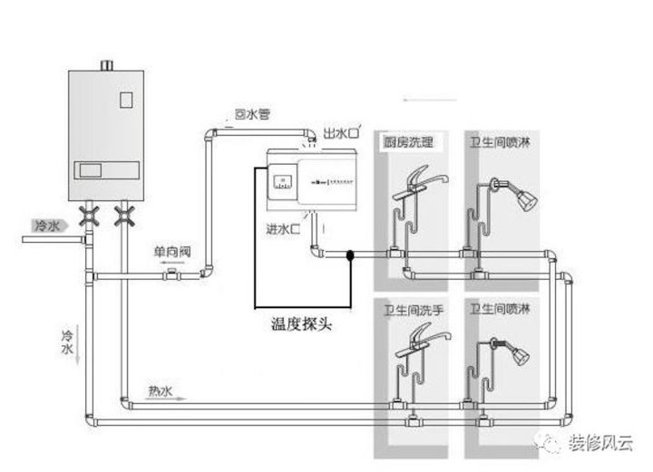
2、回水系统
卫生间离热水器太远的情况,还有更好的解决办法,就是接下来要介绍的“回水系统”。

所谓回水系统,也叫热水循环装置。
主要功能是:通过一种装置,提前预热管道内的冷水,这样就可以在打开水龙头的时候,就有热水可以用,不用先放掉一段冷水。
避免了冷水浪费,也可以达到秒秒钟有热水的效果。

具体还可以分为大循环和小循环。这个比较麻烦,极有可能把你给绕晕,就用最简单的语言来说吧:
小循环比大循环便宜,不过小循环在使用的时候,还是需要先放点儿水(不过一般只需要放几秒钟。)
费用方面,不同的选择,价格波动比较大(一般需要根据户型来确定),大多数情况下,小循环的价格是正常的改水路的三分之一。
比如正常改水路需要6000,那么多做一个小循环,就需要多加2000。大循环就更贵了……

如果你真的觉得自己需要这个热循环系统,一定要先跟工长、设计师、监理交流清楚,等做完了水路再想加回水系统,会很麻烦的。