
二手房怎么装修比较好?

正好手头有一个武汉的案例的案例,可以参考。
原房是两居室,之前的装修风格,放在80年代,也算是土豪了。木墙裙加上炫酷的吊顶,有没有瞬间穿越回到80年代练歌厅的感觉。

卧室还是软包的墙,一进去感觉世界都黑暗了。

就因为地段好,才选了这个房子,拿到手的时候,真的有点头疼……
屋主kay,更喜欢简单清新的北欧风。
最后的装修效果是这样的:

看着还行吧?
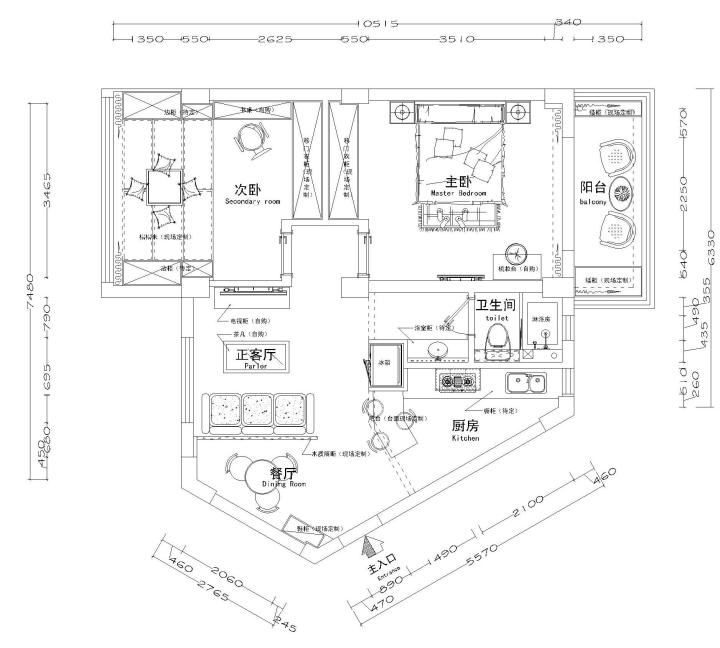
设计费了不少功夫,因为这房子的户型,是这样的:

这异形折磨掉多少脑细胞啊。
玄关
老房子,进门处的区域特别异形,是一个三角形的区域。把这块儿当做客厅的一部分吧,略显鸡肋。

打着滚的想要一个玄关,就在这里做了一个隔断,木质的隔断刚好把异形的空间划分出来成为玄关,客厅变成了四四方方的区域。

刚开始装修的时候,喜欢日式的调调,所以玄关多是木色的家具,装着装着,发现北欧风也挺赞的,就把玄关的家具都换成了白色调。
有个衣架,回家时,衣物收纳会很方便,衣架旁边摆放了一个大的绿植,可以挡住下面的鞋子。

柜子上面也别闲置,放些收纳盘、自己喜欢的小物件,或者挂个小镜子出门前整理下仪容,墙面不会显得太单调。
镜子上的皮带很有质感,旁边是hello的造型字,还可以挂点儿小东西。

旁边还放了一个伞架,这样下雨回家就不会到处是水了。

客厅
客厅比较小,抛弃了吊顶,想让客厅显得大一点。

但还有一个问题,空调放哪儿?不管是柜式机还是挂式空调,在这个小空间里,都会显得格格不入。
最后选用了风管机。
于是,需要吊顶装风管机,又不想在客厅装吊顶,怎么办?
本来隔出来的玄关只是想安安静静的充当玄关的功能的,但没想到还可以在风管机的问题上做出重大的贡献,被隔断分开的玄关,上方做了一个简单的吊顶,装下了大部分的风管机(kay选的风管机,价格跟柜式空调差距不大,高度为20cm,最后吊顶的高度为33cm)。

沙发背靠木隔断,尺寸也跟木隔断一致,很搭。各式各样的抱枕当然不能少,地毯也是变换风格的神器。冬天换上毛茸茸的羊毛地毯,感觉客厅都会温暖很多。

旋转的小茶几,买家秀发给店家后,直接被店家当做宣传图,居然也把这个小茶几弄成了爆款。

除了小茶几,沙发旁边还放了一个小推车来满足客厅的收纳。

装修中误打误撞选了一家代工厂出的北欧bolia品牌吊灯作为客厅主灯,没想到因为这个,一下子就入了北欧风的坑,原来房间装的淘宝爆款灯全部换成海淘的各种北欧风格灯。

想在老房子的户型里面放下一个大冰箱其实蛮不容易的,厨房满足基本的操作已经是件不容易的事情,还要留一些空间塞各种电器,就更没有空间留给冰箱这种大块头了。

冰箱也不合适放在距离厨房太远的地方。最后把厨房和卫生间连接的部分的墙,往里缩出来一块空间,用来放冰箱。
先定好了冰箱的尺寸(703*1780*685),然后再在这里预留足够的空间(87cm,多出的空间用来给冰箱散热)。

隐藏电表箱的软木板,是屋主自己最喜欢的小设计。

电器的话,最得意的是libratone小鸟音响(电视下面黑色的长条就是),每次跑步的时候,放个演唱会啥的,跑起来特别燃。

屋子里的小过道是后来加的,加了过道过后,两个卧室的门变成对开,更私密,房子的通风也更好。


厨房
厨房空间本来就小,还是异形的小三角形,利用率极其低下,如果按照原来的厨房布局,只能摆得下一个单灶。

砸掉墙,做成开放式厨房,一方面扩大一点儿厨房的空间,另一方面,整个客厅-厨房区域看起来是一个整体,空间更大,可活动的区域更强。
遇到这种小厨房,小客厅的房子,恰巧做饭也不多的话,开放式厨房绝对是你不二的选择。
为了更充分的利用厨房的空间,橱柜都是直接做到顶的,橡木花纹的门板跟整个屋子的风格一致(家里的木质家具,都是橡木的),台面是人造石,好打理。还塞下了洗碗机。

老房子,客厅、厨房都很小,更是没考虑过餐厅这种东西,不改动原来格局的情况下,是没什么空间放下一张餐桌的。
但也要有个地方吃饭呀。在厨房和客厅的连接处做了一个吧台。吧台一方面可以给厨房和客厅做一个简单的隔断,让开放式厨房,不那么开(吧台高度是略高于橱柜台面的,视觉上可以遮挡部分操作台面)。另一方面,小吧台可以满足两三个人用餐。
吧台的形状要根据厨房的布局调整,所以只能现场定制,吧台的架子是师傅用角钢焊好固定在墙面上的,台面是松木拼接,再刷漆。吧凳虽然是网购的,但选择的时候,尽量选择了一样的风格(木+黑色金属)。


热水器上的标签都撕掉了,换上了卡通风格的冰箱贴。

看得见的用品既要实用,也要美观。电饭煲小米,电热水壶muji,瓶瓶罐罐来自宜家。

在灶台下面的加了碗碟抽拉栏,在淘宝买了一个置物架,放经常会用到的调味品,随拿随取,毕竟做饭的时候,好味道就在毫厘之间,等你拉开拉篮,找到你需要的调味品,可能菜都糊掉了。

主卧
在卧室放下了大床和大衣柜过后,仍然显得非常空旷,这里的空间,要是能分一点儿给厨房和客厅多好……

床边muji的蓝牙音箱,周末醒来就会连上放会歌,享受赖床时光。床头柜原本是中规中矩的日式实木柜,后来换成了灵活的小推车,感觉更加洋气。

housedoctor五头吊灯,形式感很强,让卧室有了重点,只是铺床时一不小心会碰到。

床头的挂画也是北欧风。

从这个角度看,可以看到电视和衣柜,衣柜的框架是木工现场打的,柜门是自己另外买的。

工人师傅做柜门的手艺,实在是不忍直视,所以就只让木工根据现场尺寸做好了柜体,然后让柜门厂家上门测量尺寸,再选择自己喜欢的柜门,柜门厂家可以直接在淘宝上看,也可以看看做橱柜的公司是不是也做这个。
考虑到自己经常要出差,所以衣柜里面,还特意留出来了一个空间给放大的行李箱。

卧室连着的阳台,别有洞天,几乎是一个小的植物园了。



洗衣机也被放在了卧室的阳台,但最开始这里只是简单的摆放洗衣机,洗衣机旁边还被老妈强迫安装了一个拖把池,是不是略丑……

在屋主强烈要求下,终于拆掉拖把池,再做了一个阳台柜把洗衣机放进去,一下子就规整很多,跟整体也更加和谐。如果一开始就在这里做阳台柜的话,左边的空间其实还可以利用起来的。

另外原本阳台安装的是瓷砖,颜色很浅,一脏就特别明显,自己网购了塑木户外地板,安装过后,好多了。
缝隙处根据需要填了些鹅卵石,花了一个晚上自己动手搞定安装,不用固定,定期拿起来清理下面的污垢就行。

次卧
次卧目前兼具书房的功能,放下了书桌,做了榻榻米,还有两个超大的柜子。
榻榻米在有客来访时可承担卧室功能,同时也是小户型的大部分收纳担当。

定制柜子的时候其实也费了不少心思,主要都在跟工人师傅斗智斗勇上了。本来自己已经跟工人师傅讲得很明白了,但一开始做出来的柜子,是这种样式的:

把手,柜子的样子全都是跟自己规划的不一样。
本来封闭起来的几个柜子,为了不显得这里太轻,所以采用了双层的设计,但被师傅改成一层了。柜子的布局本来是交错的,很有美感,师傅做出来的柜子很乱,毫无美感可言,把手更是廉价感十足。
返工重做了才有了自己想要的效果。

榻榻米两头的柜子,可以放书,也可以放点儿自己的小玩意,也曾担心过开放式书柜落灰的问题,但从实际的使用情况来看,如果你不是有严重洁癖的话,半个月到一个月用抹布擦一次就ok,用时不到十分钟。

1.2米的书桌,日常办公学习完全够用了,书桌上方的北极熊挂架非常讨喜。


卫生间
原来的卫生间,洗漱台马桶浴缸都挤在一起,下水管也没做任何的处理,就直接露在外面。

改动后,原本直接开在客厅的卫生间门,被移到里面一些,露出洗手台,卫生间的使用率更高,上厕所跟早上洗漱,两个人完全可以同时进行。

没有做玻璃门的淋浴室,感觉太麻烦,一个小浴帘就够了。


卫生间原本有根难看的下水管道, 做了个收纳柜把它遮起来,再加上镜柜和台下柜,把小空间收纳发挥到极致,在买些收纳盒,藏得了很多盆盆罐罐。

以上。