
朋友看了她家的人字拼,掀了自家地板,重新铺!

她家的地板,人字排开,形成的几何图纹会让原本简单空间更有层次感,而且也不会有繁杂的感觉。
房子的故事
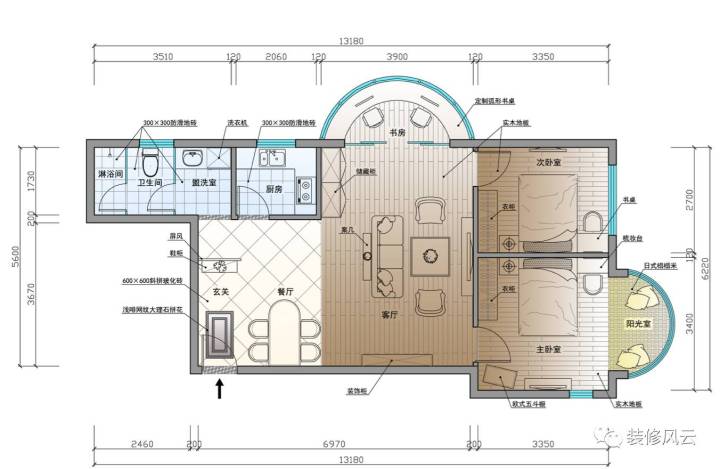
城市:上海
户型:两居
面积:102平
花费:50万
屋主:女主(吕小远儿),男主(小涛)
房子是小远跟老公在上海的第一个房子,拿到手后,从风格设计,到软装搭配,全部由自己搞定。

人字拼地板,弧形餐厅,mini书房……自己用心装出来的房子,颜值和实用并存。

玄关
原户型是没有玄关的,小远也没有在这儿做大规模的改造,只在入户门挤出了一个鞋柜。
鞋柜跟厨房的吊柜齐平,形成了一个整体的感觉,也充分利用了空间,虽然这个柜子对于爱鞋的小远来说,还远远不够,但已经是极限了。
中间空格可以放一些出入门的时候随手可以放的东西。

客厅
客厅区域还是比较宽敞舒适的,其他两个房间都用做了卧室,客厅要承载家里大多数功能。
小远家的客厅,集客厅,餐厅,小书房与一体,家里的大部分活动都在这里进行。

北欧表情的沙发是小远一眼就相中的,沙发靠手的地方比其他沙发宽一些,躺着的时候,头放在上面很舒服。

主灯是高50cm,直径40cm的松果灯,北欧风十足。

家里的颜色是灰白黑为主,所以墙壁沙发后面的这面墙涂成了浅灰色,跟家里整体的风格做一些呼应。

人字拼的地板是家里最大的亮点,北欧风十足。人字拼很适合搭配大白墙,选地板的时候,颜色不要太浅,不然会削弱V字型视觉效果。浅一点的原木色是最百搭的,小远本来想用肌理更加丰富的柚木色,但当时装修的时候,国内找不到合适的,就作罢。

拼接方面,地板不要太粗短,不然拼接起来会显得乱;搭配方面,尽量搭配各种纤细简洁的小细腿家具,这样就不会和地板纹路形成冲突。

小远自己最满意的是客厅的书架。
家里没有书房的空间,她就参照很多北欧小户型的方法,把客厅的一角打造成了mini的书房。

用string书架在客厅的墙上做了一面书架墙,有了书架,书房的感觉就出来了,不过还需要一个书桌,怎么办?
string很貌美,但是它书桌板价格很高,小远用了宜家的墙板桌来完美替代书桌的部分,节省很大一笔钱。

电视柜也用了小细腿,不会跟地板的纹路冲突,也不会影响客厅的空间感。乱乱的电视盒子和各种线,小远用了两个编织的收纳筐把它们装起来了。

餐厅
餐厅这个区域其实挺尴尬的,圆弧形的阳台,怎么处理都不合适,后来小远灵机一动,在这里摆放了一个圆形的餐桌。

餐桌的桌布是用麻布窗帘改的,皱巴巴的,正是小远喜欢的小复古的的感觉。

厨房
原来的房型,厨房的面积非常小,完全不能满足小远对厨房的要求。
经过一番挣扎之后,小远决定把厨房做成开放式的,实际使用的时候,因为在家里做饭的频率不高,所以油烟问题并不严重。
进门就会看到厨房的全貌,左侧是灶台,往右依次是操作台,水槽,隔板架,高柜,冰箱。

厨房放下了蒸箱,烤箱,洗碗机,垃圾处理器……蒸箱可以替代微波炉,烤箱做西餐的时候需要用到,可以丰富家里的饮食和做饭的乐趣。
小远家的下水道比较迂回,如果有大块垃圾漏下去,会造成下水道堵塞,通过垃圾处理器把厨余垃圾都打成水状,就不会出现这类状况了,而且直接往垃圾处理器倒就可以了,再也不用手去捞了,非常非常方便。

厨房烟道外面的小隔板,一开始准备在这里做柜子,但是后来发现尺寸太小,不划算,就想把整个封起来,但封起来白白浪费空间,于是小远再次发挥自己的聪明才智,在这里放上了小隔板,还能放不少瓶瓶罐罐。

厨房的空间,一点儿都不要浪费,在吊柜下方、墙面,都做了挂钩,把能挂的都挂起来,既节省空间,使用的时候也方便。

除了充分利用空间之外,颜值上也不能输,小远连厨房的水槽都选了更漂亮的白色花岗岩水槽。

卧室
尽管卧室不大,但为了睡觉舒适,小远还是选了大床,床的一侧是衣柜,应季的衣服基本都在这里,床尾放了五斗柜,门后狭小空间放了梳妆台,圆弧区域是房间里的阅读区。

床头还用搁板放了挂画。

卧室的衣柜,按照功能的不同,划分了不同的区域,顶上的空间,可以用来放压缩的被子和床上用品。

在放下上面的诸多物件后,卧室已经有些满了,所以床头柜只能简单一些了,放了一把白色的椅子充当床头柜。

同餐厅一样,客厅的圆弧形阳台也不好处理,单纯的阳台功能又太浪费了,小远把这块儿圆弧区域做成了自己的阅读角,还做了简单的书架,简直貌美。

阳光好的时候,在这儿看书简直是一种享受~

卫生间
卫生间的面积比较小,洗漱用品等都在台盆柜内。

小远自己最喜欢的是科勒的水龙头,有点小复古的感觉,也是费了很多心思才搞到手的。

洗衣机之前是准备放在卫生间里面的,但是会让卫生间太拥挤,就把它挪出来了。还在洗衣机上方做了很多搁板,做收纳用。

Q:装修的时候,遇到过什么坑吗?
A:厕所门的尺寸量错了,导致运过来安装的时候装不上,返工,运输和重新安排安装大概耽误了一个月。
卫生间的墙砖勾缝的时候出现了比较严重的问题,黑色勾缝剂会渗进这种瓷砖,导致很难勾缝,后来负责的师傅一点一点慢慢打进去,才搞定。
Q:有哪些建议是想要给其他装修的朋友说的呢?
A:一是要多沟通,要跟施工队或者工头说清楚,每一个步骤做之前都要确认,因为很多施工的会擅作主张,把一些东西按自己的理解去做,这样造成的就是你自己的损失,因为拆掉的费用还要自己承担,所以这点很重要,必须都要确认。
二是在签合同的时候,写清楚如果不是自己意愿之下发生的增项,不付钱,这样可以避免自己不知道的增项。