
能装下103个登机箱,她的家是小家越住越大的收纳样板

买一堆收纳神器并不能真正解决收纳难题,装修一开始,就要把收纳哲学贯彻到底。
看看屋主天天是怎么搞定收纳的,据说借鉴了逯薇老师能装下100个登机箱的电视柜大法。
房子的故事
城市:南京
户型:两居
面积:94平
屋主:天天,90后,平面设计师,收纳爱好者,她的收纳灵感,来自于实际的生活体验和网上各种大神的经验帖。天天说,开始考虑收纳的时候,一定要遵循两个原则。
一是「就近原则」,在哪儿用的东西,就放在哪儿收纳,「异地」是很难受的事情;
二是「立体收纳」,不要做很多大大小小的柜子,一个立体集成的壁柜才是真「收纳神器」。

▲户型图

▲客厅毕业照,电视柜

▲餐厅毕业照,餐边柜

▲厨房毕业照,橱柜
客 厅
客厅是家庭的公共区域,也是家的中心,整个家庭的公共物品都会囤积在客厅。

▲客厅角度一

▲客厅角度二
客厅电视柜电视墙现在已经被人折腾出花儿来了,各种层出不穷的设计让人眼花缭乱,可是,有多少人会根据自己的实际需求来设计自己的电视墙呢?
对于收纳有需求的朋友,一个定制的顶天立地电视柜是就是最好的设计了。

▲电视柜
担心大柜子会让客厅显得局促、不够清爽,不够好看?利用色彩和外观造型带来的心理错觉来设计柜子,这些都不是问题~
色彩方面尽量选择浅色,避免重色,从人的心理感官上来说,重色更容易给人造成厚重拥挤的感觉,天天家的柜子是跟墙面一样的白色。
外观造型方面要虚实结合。天天把柜子的中间和下方的区域做成了开口式,开阔的空间可以消除厚重感和压迫感。

▲并不厚重的电视柜
需要收纳的家用物品,并不是每个都美轮美奂又规整的,如果采用全开口的柜子,会让整个柜子显得杂乱不堪。要把大部分的空间封闭起来~
选择把下方柜子做成开口有两个原因,一是下方的空间更容易拿、放,操作更加方便。二是开口很容易落灰,上方落灰不容易打理,下方更好打理。

▲下方开口
柜子的尺寸 柜子的尺寸需要根据收纳盒的尺寸来确定。收纳就是要对空间的充分利用,可是我们的物品大多是异形的,小东西反而占据了大空间,太浪费了。这时候,用收纳盒把异形的东西整理起来,堆叠在一起,可以把空间充分利用起来~

▲用收纳盒把异形的东西整理起来
想象一下,如果收纳盒大大小小、五颜六色,即使是想要把它们堆叠起来,也会七扭八歪。收纳盒的大小、颜色最好都统一起来,统一,也是收纳的秘诀。

▲统一的收纳盒
统一的收纳盒选择收纳盒的时候,尽量选择那些品牌稳定,款式经典的收纳盒,这些收纳盒的质量一般都比较好,即使损坏了,也可以买到跟之前一模一样的收纳盒,不会发生「不统一」的情况。
上方的封闭空间,天天选择的是宜家的黑色的收纳盒(记得分类贴标签喔)。

▲全部选用黑色的收纳盒子,整齐,再贴上标签,一目了然
暴露在外面的收纳筐,天天选用了颜值高一些的~收纳筐可以给小孩儿放玩具。自己拿的自己放回去~
选好了收纳盒,把这些收纳盒的尺寸记录下来,就可以依据收纳盒的尺寸来确定每个柜子的尺寸了。据说这个柜子,可以装下100个行李箱!!!

▲素颜的柜子,据说可以装下100个行李箱。
虽然做了电视柜,但因为浅淡的配色和灵巧的外观,所以客厅并没有局促的感觉。灰色L型沙发放在客厅也不觉得挤。天天偏爱粉色,所以靠垫和茶几特地选择了粉色,其他则用黑白灰搭配,和谐的色彩~

▲沙发和茶几
天天在两个卧室中间留了一个小壁灯,夜里去卫生间不用担心打开主卧的灯吵醒老公,也不会担心摸黑去卫生间撞到什么,非常棒的小细节。

▲壁灯
本来想把阳台做成飘窗,偶尔喝个下午茶,不过,问过了很多朋友,都说自己的飘窗都沦为了放置杂物的地方。于是天天把这块儿地方设计成了自己的「书房」,两边做成高柜,书也有地方放了~

▲书房
书房高柜立体集成的高柜收纳能力也非常强大,除了自己的书,天天还在这个柜子里装下了3个行李箱。

▲高柜里足足放了三个行李箱。
餐 厅
餐厅是天天在家里所有空间里第二喜欢的地方,这儿是原来屋主的书房,天天跟老公商量了过后,根据自己的实际需求,把这里设计成了餐厅。

▲餐厅
餐边柜餐厅加上了一个餐边柜;因为没有玄关,没办法做鞋柜,所以餐边柜的下方可以放上鞋子,而中间的台面,放上面包机和咖啡机,享受早餐咖啡。

▲餐边柜
胡桃木材质的桌子,不易开裂变形,家里的家具以浅色白色为主,颜色较重的胡桃木可以起到中和的作用,餐厅的餐桌和餐椅都统一搭配的。

▲胡桃木餐桌餐椅
厨 房
「厨房是我在家里最喜欢的空间!这次自己画图设计橱柜功能、测量尺寸、挑选把手,重新设计改造实现了自己理想中的厨房!」天天这样说到。

▲前主人的厨房VS天天自己设计的厨房,并没有太多不同?错!看细节~
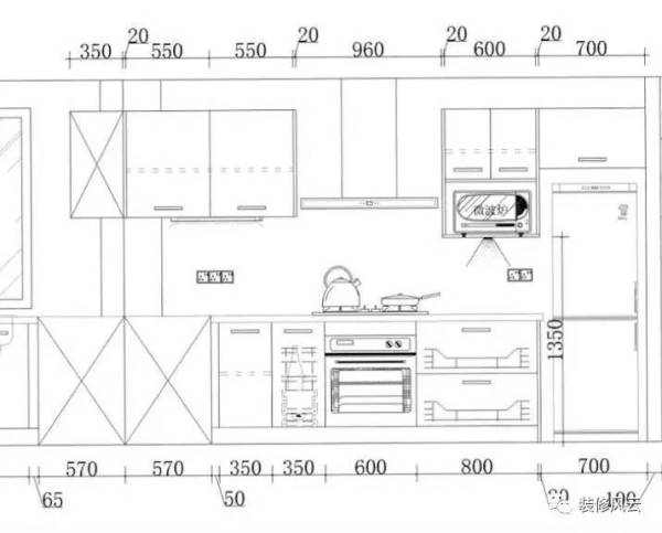
橱柜小小的厨房可能是对于收纳要求最高的地方了,这时候,你需要一个超高效率的橱柜,结合自己的实际生活习惯和各种书籍,天天亲手设计了自己的橱柜~

▲天天画的厨房设计图
橱柜主要分为三大区域:
1.吊柜,高度最好控制在650~780mm之间,太高了根本不方便拿东西,也不建议做成上翻式的,上翻的柜子根本没办法愉快开关。以前主人的厨房,吊柜就太高了呢,而且还是上翻式的~

▲天天的上柜是平开式的,开关都非常方便,还放上了带把手的收纳盒
微波炉吊柜其实是不建议做的,因为微波炉吊柜的高度,一般是超过人的水平视线的,使用微波炉的过程中,发生倾洒,很容易烫伤。不过,天天给微波炉吊柜做了一下「特殊处理」,把微波炉吊柜下沉了。前主人的微波炉吊柜,是不是很危险呢?

▲正在安装的橱柜
2.台面空间
黄金操作区切菜区域是台面的黄金区域,一定要尽可能扩大这个操作区域的面积,因为这个地方活儿最多,东西也最多,长度至少要达到600mm,天天家是做了700mm。
如果把所有的东西一股脑的全堆放在这个区域,再宽的空间也不够摆放的,这时候,把能挂起来的,都给挂起来。调料罐也遵循之前讲到的统一原则,换成统一的调料罐,这样看起来也不乱。对比下,原来的厨房,大小不一的瓶瓶罐罐,是不是很乱呢?

▲把其他的东西都挂起来
吊柜底灯。做饭的时候,灯下黑?不怕切到手吗?反正天天是有些怕的;现在每天进厨房,第一件事儿就是把这个灯打开,利用率百分百~

▲吊柜底灯
台面选择了人造石的,很容易清理,本来天天想把台面靠墙的部分做成圆弧形的,因为更容易打理,可是橱柜公司没做过这种,只好放弃了~

▲稍微有些遗憾的台面
在水槽旁边坐了一个沥水篮,非常实用。

▲沥水篮
3.下柜
抽屉下柜下柜的秘诀就是:抽屉抽屉抽屉。搁板式的下柜,非常不方便,拿个东西,都要蹲下去找半天,天天把下柜全都做成抽屉式了,方便省事儿,而且收纳的空间也变大了~

▲下柜都是抽屉

▲想要什么,抽屉拉开就能看到了

▲小抽屉的收纳

▲整整齐齐的碗
卧 室
卧室是休息的地方,没做太多的布置,裸粉色的床品,让整个卧室都温馨起来。

▲主卧
床和床头柜都是胡桃木的,跟自己家所有的木质家具都是统一的风格。

▲胡桃木的床和床头柜
卫 生 间
干湿分离的卫生间,用门把多个空间都隔离开来,不用担心卫生间的湿气令橱柜受潮。

▲沐浴

▲镜柜
洗浴用品的瓶子总是大小不一,用标准的瓶子把他们装起来,眼前瞬间干净了。
这个小壁龛是特意留出来放这些洗浴用品的,而且还做了一点儿倾斜,这样残留的水可以自己流出来~

▲标准瓶子+有点儿倾斜的壁龛
亲手设计的小家,看似随意的小细节,其实都暗藏深意~理想终于变成了现实,干杯庆祝~

最后复习一下天天的收纳经验:
① 就近原则:在什么地方用的的东西,就放在什么地方。
② 立体原则:满屋子的柜子不会让你的收纳变得容易,反而让小家变得更加拥挤。
③ 统一原则:一定要统一,统一就是整齐,不管是收纳盒还是瓶瓶罐罐,都统一起来。