
如何将收纳功能与空间的视觉设计结合?

分享屋主天天家的收纳设计,装修最开始的时候就考虑了收纳,遵循两个原则:
一是「就近原则」,在哪儿用的东西,就放在哪儿收纳,「异地」是很难受的事情;
二是「立体收纳」,不要做很多大大小小的柜子,一个立体集成的壁柜才是真「收纳神器」。
最后装修毕业的空间效果如下:


▲客厅,以及包进来利用的阳台


▲客厅旁边的餐厅
这种简单温馨风格,90后小夫妻应该都很喜欢的。
客厅和餐厅是家的中心,整个家庭的公共物品都会囤积在这,所以收纳设计的心思一大半都花在怎么设计客厅餐厅的柜子。

▲户型图
客厅电视柜电视墙现在已经被设计师折腾出花儿来了,各种层出不穷的造型让人眼花缭乱,但如果是针对收纳的需求,一个定制的顶天立地电视柜就是最好的。

有人会担心大柜子会让客厅显得局促、不够清爽,其实利用色彩和外观造型带来的心理错觉来设计柜子,这些都不是问题。
色彩方面尽量选择浅色,避免重色,从人的心理感官上来说,重色更容易给人造成厚重拥挤的感觉,天天家的柜子是跟墙面一样的白色。
外观造型方面要虚实结合。屋主把柜子的中间和下方的区域做成了开口式,开阔的空间可以消除厚重感和压迫感。

需要收纳的家用物品,并不是每个都美轮美奂又规整的,如果采用全开口的柜子,会让整个柜子显得杂乱不堪,还是要把大部分的空间封闭起来。
选择把下方柜子做成开口有两个原因,一是下方的空间更容易拿、放,操作更加方便;二是开口很容易落灰,上方落灰打理起来累,下方容易一点。
开口柜子里用收纳筐装孩子的玩具,因为小孩身高矮,只够得着下面的,收纳筐功能简单,小孩使用也没什么障碍,可以从小培养孩子自己拿自己放回去的习惯。

柜子的分格尺寸怎么定?一定是根据收纳盒的尺寸来定。生活用品大多是异形的,小东西反而占据了大空间,太浪费,所以要用收纳盒把异形的东西整理起来,堆叠在一起,利用空间不留死角。

如果收纳盒大大小小、五颜六色,即使是想要把它们堆叠起来,也会七扭八歪。收纳盒的大小、颜色最好都统一起来,怕分辨不出来哪个装了什么就贴标签。
收纳盒尽量选常见品牌的经典款,一是品牌的东西质量一般比较好,二是即使坏了,也能买到跟之前一模一样的。

屋主本来想把阳台做成飘窗,不过问过了很多朋友,都说自己家飘窗沦为了堆杂物的地方。于是把阳台设计成了「书房」,两边做成高柜,放书。
除了书,阳台柜子里装下了三个行李箱。


家里没有玄关,没地方做鞋柜,无奈中的办法是把鞋柜和餐边柜两个功能集成到一起,三段式柜子下面收纳鞋,上面收纳餐具,中间的台面放面包机和咖啡机。

中间格子很长,除了小家电,还能放很多喜欢的展示品。

墙、门和柜子都是白色或浅色,餐桌和餐椅都用颜色较重的胡桃木,可以起到中和的作用,而且胡桃木不容易开裂变形。

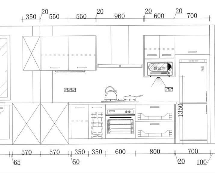
厨房是屋主在家里最喜欢的空间,自己画图设计橱柜功能、测量尺寸、挑选把手,重新设计改造实现了自己理想中的厨房。

▲之前的厨房VS改造后的厨房

▲用了玻璃门,视觉通透
厨房一定是全屋对收纳要求最高的地方,需要一个超高效率的橱柜。设计如图:

橱柜主要分为三大区域:
①吊柜:高度最好控制在650~780mm之间,太高了根本不方便拿东西,也不建议做成上翻式的,上翻的柜子没办法愉快开关。这里上柜是平开式的,开关都非常方便,还放上了带把手的收纳盒。

微波炉吊柜不建议做,因为一般超过人的水平视线,使用微波炉的过程中,发生倾洒,很容易烫伤。或者像屋主一样,至少给吊柜做「下沉处理」,让微波炉尽量放低一些。

②台面:切菜操作区是台面的黄金区域,一定要尽可能扩大这个操作区域的面积,因为这个地方活儿最多,东西也最多,长度至少要达到600mm,屋主家做了700mm。
如果把所有的东西一股脑的全堆放在这个区域,再宽的空间也不够摆放的,能挂起来的都挂起来。调料罐也换成统一的,看起来不乱。

在水槽右边做了一个折叠式的沥水篮,简单实用。

▲沥水篮收起来

▲沥水篮放下来
③下柜:秘诀就是抽屉抽屉抽屉。搁板的非常不方便,拿个东西,都要蹲下去找半天,屋主把下柜全都做成抽屉式,注意底层抽屉的高度,因为弯腰累,底层用得肯定比上层少,做高一点,能放得进不常用锅。



卫生间,洗浴用品的瓶子总是大小不一,用标准的瓶子把它们装起来,眼前瞬间干净。
壁龛特意留出来放洗浴用品,而且还做了一点儿倾斜,这样残留的水可以自己流出来。

回过头来,再复习一下收纳重点:
①就近原则:在什么地方用的的东西,就放在什么地方。
②立体原则:分散的柜子不会让收纳变得容易,反而让小家变得更加拥挤。
③统一原则:一定要统一,统一就是整齐,不管是收纳盒还是瓶瓶罐罐。