
有一种装修风格叫现代美式,也许比北欧风更具性价比
我们装小蜜的一位业主不仅成功装修了小清新的美式,并且在某论坛收获了家装日记最受欢迎TOP3。
房子的故事
风格:现代美式
城市:杭州
户型:三居
面积:85平
花费:24万
屋主:小柒(女主)、老张(男主)
准备装修的时候,小柒和老张对风格基本没有什么概念。 一天,老张在论坛上发了一些户型一样的装修日记给小柒,他们统一觉得比较好看的那个,正好是美式。
恩,那就美式吧,这么愉快的决定了。
但是对于厚重的老美式风格实在是有点接受不来。老美式不行?那试试看小清新的美式吧。

玄关
玄关上面的吊顶,做了向上凹陷的设计,分层次的线条很有设计感。
右边的墙上,挂了一个手工的铁艺穿衣镜,纯白色边框顶部还带有镂空的设计,小柒很喜欢。镜子的右边是小鸟造型的挂钩,纯白色的小鸟没有任何修饰,却一下让玄关生动了许多。

▲小鸟造型的挂钩很文艺,和旁边白色的镜子十分搭配
挂钩的对面,小柒做了一排顶天鞋柜。中间做了隔断的设计,可以平时随手放个钥匙或者给进门就给手机充个电什么的,实用又方便。
隔断的墙面贴了小小的彩色的马赛克砖,让狭小的空间瞬间活泼了起来。

厨房
鞋柜的旁边,便是厨房。
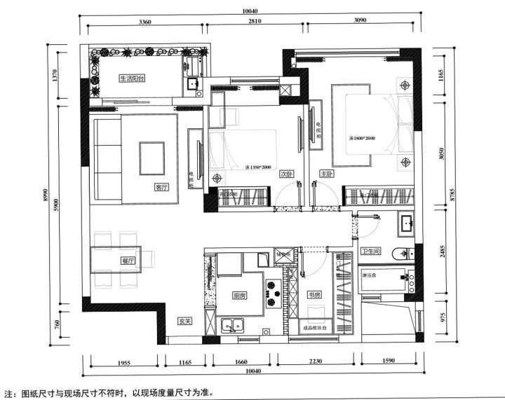
原来的户型厨房太小了,作为经常做饭的老张,向小柒表达了不满,要求把厨房扩大一些。小柒一开始是不同意的。老张说,家里我做饭多。小柒:…… 老张说:以后都是我做饭。小柒:成交!
于是在设计的时候把书房做成了衣帽间,然后把厨房扩大了点,衣帽间做小了点,实现了老张想要有个大厨房的愿望。

▲最终的户型图
厨房门选择了推拉门的设计,节省了开门所需要的空间,透明的玻璃也让厨房的空间感大了很多。

老张对于蒸箱有莫名的爱,查了各种资料:蒸箱具备所有微波炉的功能,且能保持饭菜的口感,也更健康。小柒呢,特别钟情于烤箱,一个是因为小柒喜欢烘焙,二是以后有小孩烤箱应该也用得到,可以做做蛋糕饼干之类的。可是厨房空间比较有限,要想全部都放下简直是不可实现!怎么办呢?买个蒸烤箱一体机!既能蒸又能烤还节约空间,小柒和老张的要求全部满足了。
厨房的瓷砖选择很美式,为了避免整体颜色太过深沉,小柒选择了白色的橱柜搭配浅色的台面,整体看上去稳重又不会显得老气。

▲黑色的蒸烤一体机搭配白色的橱柜,很亮眼
水槽选择了单个的大水槽,洗个碗刷个锅都没问题。水龙头安了可抽拉的,这样平时打扫卫生也可以冲到水槽两侧,简单又方便。
墙上的收纳必不可少,小柒把砧板和筷子篮都挂上了墙,让台面清清爽爽。

原本厨房面积有限,冰箱放在哪里一度成了小柒和老张头疼的问题,厨房扩大以后,冰箱也顺利入驻了厨房。双开门的白色冰箱真的很貌美,让厨房看上去更加小清新了。

PS.扩大这种事,还是谨慎的好。因为不仅要考虑到墙体结构,还有各种管道问题,没有十足的规划和把握,不要轻易尝试哈。小柒家请了装小蜜专业的监理老师,所以在装修的细节把控上还是很到位的。
客厅
从玄关直接往里看,就能看到客厅的全貌了。作为家的核心区域之一,小柒和老公对客厅也是没少花心思。
一般美式风格客厅都会选择贴壁纸或者刷成深米色,但是这两个小柒都不要,而是选择了淡蓝色,淡淡的偏灰的蓝色让整个客厅都亮了起来。

客厅里最吸引人目光的就是这个高颜值的沙发了,淡淡的马卡龙蓝色,和客厅灰蓝色的墙面很相称。
老张本来是希望可以用深色系的沙发,这个想法被小柒完全否定了,相比于老美式稳重的老干部风格,小清新才是小柒的心头好,谁心里还没个少女不是?
沙发是小柒找的图片然后让家具厂定做的,因为有软包在,所以框架为杨木加多层板,填充物为高回弹海绵,话说是十年不变形不塌陷而价格只要4000元。

▲近距离的看下这个仙女系的沙发
沙发后面的背景画,小柒也是选了好久。因为又要适合整体的风格,还要跟这个仙女系的沙发相得益彰,恩,不好选。
一般美式风格的壁画多数都是颜色浓郁的风景或人物,加上厚重的边框,类似下面这样

有点老气的感觉。小柒经过一番寻找,还是选到了更加现代抽象风格的画。

因为客厅面积并不算很大,所以小柒只选择放一个沙发,然后选择了一把轻巧的黄色椅子放在茶几旁边,纤细的椅子腿让空间看起来更加通透,活泼的黄色与马卡龙蓝色的沙发撞色效果也十分漂亮。
加上毛茸茸的椅垫,让人觉得慵懒又十分温暖。

▲姜黄色的小椅子显得轻便又可爱
餐厅
与客厅紧挨着的,就是餐厅了。餐厅的背景小柒挂了一组餐盘,各种动物的图案,十分童真有趣。因为客厅已经挂了画,所以餐厅再选择挂画会显得很繁琐,简单清新的餐盘组合效果出人预料。

餐厅灯小柒选择了一个吊扇灯,既有着浓浓的美式气息,也可以在天热的时候带来一丝清凉。
餐厅另一侧,小柒放了一个餐边桌。为了避免餐边桌上方的墙面太空旷,小柒挂了一个美式的钟,第一次买的时候小了,显得墙面还是很空,后来又换大了一些才合适。

餐桌和餐椅并没有太多花哨的元素,简单的造型加上北美红橡木的质感,还有一些简单的小装饰,温馨又实用的餐桌就完成了。

PS. 1、实木家具遇热会留下痕迹的哦,所以一定要做好防烫措施,比如像小柒这样加一个防烫的垫子,是不错的选择 2、大家如果买装饰画或者挂钟类似物品,其实可以先用一块硬纸板裁出具体尺寸先比对下,以免发生来回退换的麻烦。
卫生间
卫生间里的浴室柜也选择做了白色,会让小空间看起来不那么局促。上面做了可收纳的镜柜,化妆品什么的统统可以放下,下面柜子的空间也很大,浴室里的收纳担当没错了。
旁边的黑色小镜子一开始小柒是拒绝的,现在觉得真的好实用。老张刮胡子,小柒敷面膜的时候都能用到。黑色的水龙头也是可以拉伸的,方便老张每天早上洗头。

卫生间面积不算大,但是小柒用瓷砖给马桶分了“区”,拼接造型的小花砖即使搭配黑色的置物架,也是满满清新的感觉,让单调的卫生间有了生气。

沐浴区小柒做了淋浴房,干湿分离,以后打扫卫生也方便。淋浴房的侧面做了三个壁龛,一些沐浴用品可以直接放在壁龛里,不同的高度设计,方便小柒和老张拿取物品。

书房
因为借了一部分空间给厨房,所以书房的空间便没那么大了,本来想做成衣帽间,便给右侧做了一整面墙的衣柜。结果衣柜做完后,发现还有地方放书桌,空间不要浪费,正好一个独立的安静的空间适合看书写字加班工作。
黑色线条型的桌腿加上实木的桌面,造型简单又实用。浅蓝色的窗帘搭配白色的纱帘,让这个不大的空间显得明亮许多。

▲桌子上放的是客厅同款壁画
这个房间没有装空调,所以装了餐厅同款的美式风扇灯。夏天的时候,吹着风扇看着书,也是十分的舒适和惬意。


▲还没入住,所以很多东西小柒都套上了包装袋
主卧
主卧墙面是淡淡的黄色,让人有一种很温暖的感觉。右面同样做了整面墙的柜子,这样小柒和老公的衣服就可以妥妥的收纳起来了,不必担心空间不够。
挂画依旧延续了客厅抽象系列,结合房间窗帘选了蓝白色系。细细的黑边框搭配大面积浅色的抽象画,既和实木的床颜色搭配,又不会觉得压抑。
为撒还没挂到墙上,Emmm,老张还没借到锤子。。。

床头柜也是北美红橡木的,四层抽屉的设计。简单的造型搭配做旧的拉手,低调又十分实用。台灯金色的镂空底座为床头增加了一抹亮色。

床的左面是小柒的梳妆台,本来如果按照老公的想法把主卧的空间借一部分给卫生间的话,这个梳妆台大概率的会放不下。没有改动,放起来刚刚好。

床和梳妆台都是实木的,为了平衡家具的厚重感,小柒选择了这套蓝底带白色花纹的床品增加一些清新的感觉,不仅和床头的背景画还有窗帘的颜色都能完美融合,放在床上也不会觉得很颜色很跳跃。
次卧
小柒和老张目前还没有宝宝,所以儿童房保险起见刷了有点偏粉蓝绿的色调,也是很小清新的颜色。目前没有给儿童房买家具,可以以后再慢慢添置。
这么清新的颜色基调下,无论是实木的深色家具还是白色家具,都可以完美容纳,不会有老气的感觉的。

不过,小柒还是很细心的给飘窗定做了垫子,和窗帘一样淡淡的蓝色,很耐看。窗帘上方还特意做了一个水波纹的帘头,蓝白交错,十分温柔可爱。

出于安全考虑,窗户上定做了可拆卸的护栏,以后宝宝大一点不需要了就可以拆下来。飘窗侧面本来是做了一个开放式的书架,但是考虑到美(某)观(人)问(偷)题(懒),所以加了柜门,看起来更加美观也好打扫了许多。