
小客厅,大卧室,看小两口怎么搞定50平上海老公房
房子的故事
城市: 上海
户型: 两居
面积: 套内面积52平
花费: 20万
监理: 装小蜜
屋主: 花花(女主)+ YY(男主)+ Blue(喵主)
在上海这个寸土寸金的地方,买个房子其实也蛮不容易的。50平米小户型,客厅小,卧室大(进深4米,比客厅大多了),可是卧室你要这么大干嘛?在卧室开Party吗?

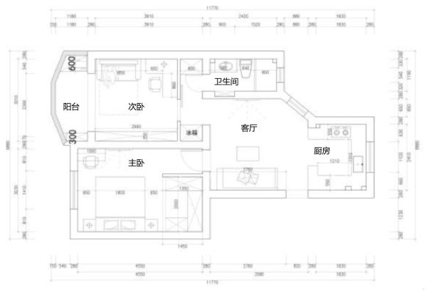
来看看户型图:
1、客厅小。封闭的厨房也遮挡了客厅的光线。
2、卫生间门正对客厅,有人说风水不好,视觉上也不好看吧,电视墙上开一道门? 不好看。

改造后:
1、开放式厨房,客厅和厨房连在一起,增大了客厅的视觉面积,光线也更好了。
2、把原来的主卧缩小,变成次卧,并隔出来一个小通道,通道的位置可以放冰箱。卫生间的门也不再正对客厅了。
3、以前的次卧改成主卧,并且充分利用卧室的空间,做衣帽间,满足收纳需求。
客厅
①沙发
老公房,客厅小。为了营造一个较大的空间氛围,客厅用了很多明亮的色系,用一个深色的沙发压压场,中和一下。


②茶几和布艺画
亮黄色的小茶几是淘宝淘来的,可以提亮整个房间的亮度。


整个客厅都是白白白,大白墙上挂的布艺画也是简洁风。

③电视墙
客厅小,要是再放一个电视柜,太挤。取而代之的是一款订制的原木,安置在电视机下,装饰效果和置物的效果都很不错。

④轨道灯
花花抛弃了传统的吊灯,传统吊灯光线集中,在小客厅里也显得臃肿。轨道灯光线更柔和,不刺眼,还可以在沙发旁加上一个落地灯。

tips:轨道灯色温选择了4000k,3000K的太暖,6000K太冷;购买射灯时,最好多看看实物,因为实际展示出来的灯光效果,图片上是很难辨别的,亲身感受才靠谱。
⑤餐桌
餐桌来自宜家,原木色,打开收起都比较方便,可以供2至8人就餐。



厨房
⑥开放式厨房
把厨房做成开放式,客厅的空间也显得扩充了一些,光线也更好了。做饭的时候,家里的喵主还会来「观战」。


⑦ 橱柜
厨房最重要的收纳就是橱柜。
花花在小小的厨房塞下了烤箱和洗碗机,放弃了一些收纳空间。为了弥补这些收纳空间,把下柜都做成了收纳能力爆表的抽屉和拉篮。


下面直接放上花花家的橱柜设计图,大家自己设计的时候也可以参考参考,看不清楚的同学请戳大图。

烤箱放在炉子下面,旁边就做了一个调味篮,其他的都做成了抽屉,整个厨房的插座极多,正常厨房区域的插座在八个左右,花花安了十几个。后来证明,这些插座非常有必要,现在厨房的小电器太多了,多多准备插座是没错的。

把热水器放在了厨房,可是热水器太丑了怎么办,做一个百叶柜子把它挡起来就好了。

每个抽屉里面也可以安装一些分隔的置物架,让一切都整整齐齐起来。


⑧烤箱
喜欢烘焙的同学,一定要来一个大的嵌入式烤箱。


⑨洗碗机
洗碗机是烘焙的神助攻。花花喜欢烘焙,一般的套路是,称量材料,用掉了五六个小碗,分离蛋黄蛋清,用掉两三个碗,打蛋器、勺子、刮刀、切刀,晾架…一场烘焙搞下来,轻轻松松十几个器具要洗,而且这些东西也非常难洗……
没有洗碗机,连做烘焙的热情没了,好吧,碗其实都是老公洗的,买洗碗机也是想为老公减少负担。

⑩百叶窗
开放式厨房,直接连通客厅,光线好了很多,隐私也是一个问题,给厨房的窗户挂上百叶窗,轻松搞定。

据说猫跟百叶窗是很好的搭配,总会有猫跟百叶窗过不去,各种钻,各种扒,比如下面这只。

花花家的猫很乖,目前关注的重点还是在屋子里的各种柜子,对百叶窗并没什么兴趣(其实是弹跳太差,根本跳不上去)。家有喵主的朋友们,慎重考虑百叶窗。
主卧
⑪床头墙漆
灰蓝色的床头墙有一种安静的感觉,利于睡眠。

⑫床和床垫
睡眠对于人很重要,还是要买好一点,买了实木床,床垫当然也要精挑细选,在睡过N多床垫过后,选择了斯林百兰的床垫,超级舒服!

⑬床头灯
黑色小射灯点缀在灰蓝色的墙面上,跟长在上面一样,毫无违和感。

⑭宜家吊灯
吊灯是宜家的,很好玩,就买了,没想到后期效果还挺COOL的。

⑮衣帽间
在卧室里面隔了一个衣帽间,布局是按照自己的生活习惯来设计的,能放好多东西!衣帽间里做了一个感应灯,人来灯亮,人走灯灭。

次卧
次卧目前还没人住,暂时被花花他们做成了自己的书房+工作室。

⑯书桌
从设计到购料到组装,都是花花和YY一起完成的,颜值爆表~挡板都是在宜家选的,自己规划好布局后,让师傅给给钉上去就好。


⑰书桌吊灯
吊灯长度是可以根据自己的需求来调节的,看书的时候,头顶的灯源+台灯的灯源对眼睛最好。



卫生间
⑱超大镜柜
卫生间太小了,只有3平米,还是狭长型!做了一个超大的镜柜,镜子扩充空间的能力非常强。储物能力也是爆炸,一股脑把瓶瓶罐罐的什么都给吞进去了。


⑲浴帘+挡水条
卫生间还是太小了,干湿分离就不奢望了,做个浴帘+挡水条,效果也还不错。


最后再放上花花家的喵主,这也是新家里重要的一分子!

以上。