
什么样的居住空间是既实用又好住的设计?

推荐一个,简单舒适的北欧风。
坐标武汉,三居107平,一家三口,儿子学龄前。
选定风格时,女主人喜欢田园一点,男主喜欢MUJI以及北欧一点,最后综合了两个人的喜好,设计效果图如下:


因为屋主是设计出身,有很多自己的想法,也和设计师很合拍,最终毕业效果很满意,不逊色于效果图。虽然是北欧风,但是没有冷冰冰的感觉,更偏温暖一点。
以下是毕业实景照片,镜头原因,空间纵深方向都有拉长,两张图对比起来看,更能想象出真实的尺度:


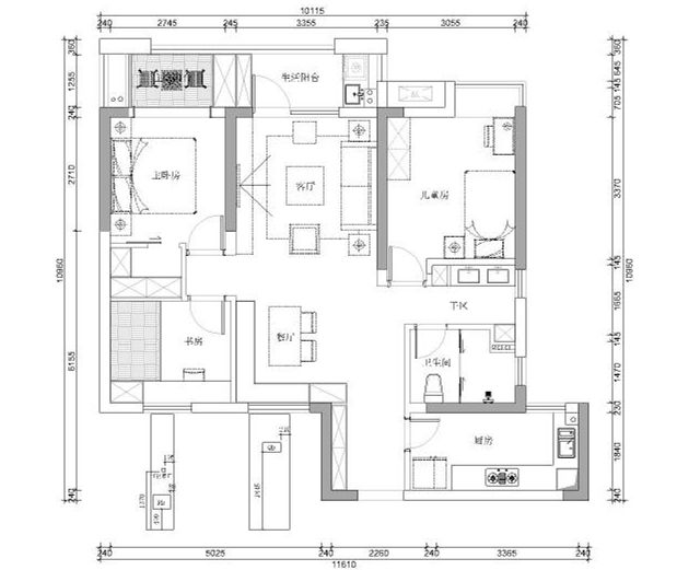
装修预算23W,实际花费控制在26W以内。装修中保留了原始的三个房间,但房间功能和面积上,做了许多调整,以下是改造完成的户型。

玄关比较重视收纳,毕竟是给人的第一印象,杂七杂八都堆在外面了还怎么小清新?大鞋柜目测可以放几十双鞋子,够一家三口使用了。

卡座是餐厅最得意的设计,很实用,下面放点杂物和零食非常方便。原木餐桌来自网购,加上两把温莎椅,一共2k+,实惠好用。

餐桌对面的小片墙壁采用灰色系,满足男主人对冷色调的偏爱,也是在全屋的纯白和原木色中做个点缀。


灰蓝色的谷仓门背后是厨房。
一般会做个常规的L型橱柜,但是怕台面不够用,水槽旁边又加了一小块台面,于是橱柜布局变成U型的。小台面比较窄,但是也能放很多东西了,要是还嫌台面还不够用,旁边能再接个多层置物架。

橱柜怕全白色觉得单调,吊柜做的木色,出来的效果不错。

关于电器方面:地柜里装了洗碗机,使用后发现真是方便,只要你摆放得当,大部分都清洗的很干净;垃圾处理器最初打算装,预留了插座,最后由于预算没能实施,现在倒觉得加装的需求不那么迫切了。
客厅,想要追求温暖和舒适感,用木制家具基本不会出错。

5k多的胡桃木电视柜有点肉疼,但是品质上和1k多的餐边柜比起来,确实好了不少,是客厅里最满意的部分。

沙发也是网购,不贵,看样子买的,和家里风格搭就行。坐深有点浅,主要是男主块头比较大,觉得坐上去比较局促。后来想想这东西换起来方便,用旧了直接换了就是。

交房给的是一个超长大阳台,横跨客厅和一间卧室的外围,装修隔成了两个,客厅这一半做生活阳台洗衣晾衣,卧室那一半做休闲阳台。

主卧是原来的次卧改的,对门是书房,把书房的面积减一减,划给主卧,做了个主卧的衣帽间,满足老婆的心愿。

衣帽间的柜子是L型,用2.7米顶天立地的板子来做,效果很棒,储物能力和1~2个大衣柜相当。

一个舒适的小空间大大增加居住的幸福感。家里最喜欢的空间就是主卧,因为房子前面没有遮挡,有太阳的时候窝在阳台的懒人沙发上面看书非常舒服。

床垫在实体店试过,太贵没下手,后来网上有做活动,软硬程度都一样的,折后5k+,和邻居拼单团了一个,使用感受是好床垫真的睡得舒服,全屋性价比最高单品当之无愧。

把原本的主卧让给了儿子,做成儿童房,因为这个房间更大,希望尽量给孩子更多的活动空间,而且更大的空间,也能更好地随着孩子成长做布局上的改变。

儿子在上幼儿园,需要宽敞的空间玩玩具和做游戏,所以没有用常规1.5米的床来占满整个房间,而是选择一个他目前够用的床,把中间的区域腾出来活动。

家具也都很迷你,方便挪来挪去,让空间丰富有趣。等儿子大一点,就可以选择更大的床,更大的书桌了。

最后是卫生间。因为家里常住就是三口人,没必要搞两个很小的卫生间,把原本的主卫和次卫合二为一,变成一个大卫生间,实现干湿分离,干区还做了双面盆,能满足早上一家三口同时洗漱的要求。

洗脸台做了个抽拉的柜子,当时考虑到承重的问题,装的时候用了两条重型轨,现在发现抽拉还是有点吃力,看来还是不能小看板材的重量,提醒大家一下。
合并后的卫生间湿区也很宽敞,淋浴房里可以放下儿子的浴桶。

