
装修一个日式MUJI风格的家,好看又不贵
风格 :日式
城市 :青岛
户型 :两居
面积 :86平
花费 :12.5万(不含电器)
屋主 : JUN,喜欢MUJI产品和原木家具,喜欢日本综艺《全能住宅改造王》,装修自然而然选择了日式风格。

▲户型图
从JUN的装修经验来看,只要做到下面这四点,日式风格至少成功了一半。
1、硬装做到最简单,四白落地,不要吊顶,不要石膏线,就是白墙+木地板。

▲四白落地的客餐厅毕业照
2、色彩一定要克制,基调是白色和原木色,局部搭配米色、咖色、灰色、绿色、蓝色,避免高饱和度高明度的色彩。

▲装饰画和门帘适当加入蓝色
3、不要傻大粗笨的卖场家具,淘宝轻盈细腿的原木家具,主要有红橡、白橡、榉木三种木质,虽然颜色和纹理有差别,但搭配起来很和谐。
家具颜色尽量不和地板颜色重叠,深一些或浅一些更好看,都说“红橡不红,白橡不白”,所以红橡的颜色其实比白橡要浅。

4、头顶一盏吸顶灯既平板无趣又效率低下,应该根据空间特点来布置灯,餐厅、客厅、卧室需要不同的灯光氛围。

▲用落地灯和串灯补充灯光
1、玄关
入户门没做臃肿的门套,简单留白框,看着精神。

宽1.1米的玄关细长狭窄,家具精简到最少,只保留鞋柜和换鞋凳。鞋柜长80cm,深35cm,柜门是对开的百叶门,通风不错。

▲从厨房里面看向玄关鞋柜
换鞋凳长1.2米,带可拆卸的挂衣杆,双层凳子下面还能拓展出很多收纳鞋子的空间。

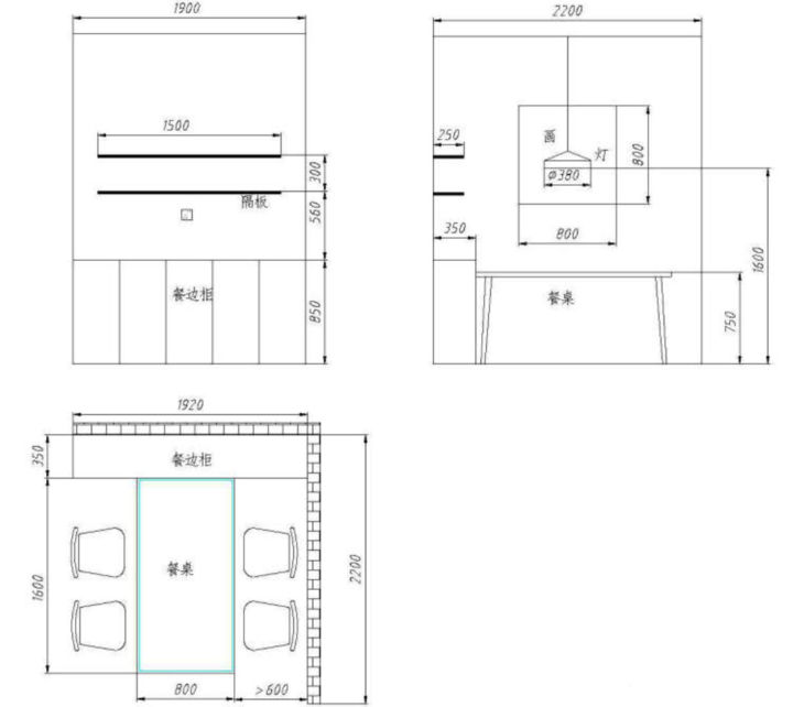
2、餐厅
餐厅是1.9米*2.2米的一块小区域,餐桌0.8米*1.5米,靠墙的餐椅只有60cm多的腾挪空间,空间还是挺紧张的。

▲餐厅设计图

餐厅用一盏吊灯做重点照明。灯罩离地大概1.65米,离餐桌大概0.85米,是宜家的勒普纳系列,直径38cm的大号款,搭配飞利浦的13W灯泡,一盏灯就能照亮整个餐厅区域。(勒普纳灯还有小号款,不喜欢一盏大灯的话,用两盏小灯搭配1.5米的餐桌也是适合的。)

餐边柜和橱柜一起做的,深度35cm,餐边柜的主要作用是遮挡地暖分水器,所以一部分柜门平时被桌子挡住了也没关系,当然如果能做推拉式柜门,会更方便一些。

厨房台面太少,小家电大多挪出来,放在餐边柜上面。墙上加了两道搁板,高度间距30cm,深25cm,可以放置许多餐具,这里自然成了简易咖啡角。

▲遗憾是这里只留了一个插座,只能接插排了,而且小家电功率都比较大,尽量不同时使用。
家里看电视不太频繁,所以电视布置在了餐桌对面,吃饭时顺便看看就好。不想用太厚的电视柜占用过道空间,DIY了一张横板,配上三只收纳筐充当电视柜。

3、客厅
宽3.1米的小客厅,加上餐厅也只有20平米左右,却是几乎所有家庭活动发生的场所,而卧室只剩下睡觉的功能。

刚入住时,娃正好一岁,随着孩子成长,客厅核心区的布局经历了从1.0到3.0版本的变迁。

▲客厅最初的设计图
最初希望打造一个有影音和书房功能的会客厅,茶几在双人沙发和懒人沙发中间,加上周围几把椅子,自然围合出一个面对面的交流空间。

▲客厅1.0版本
电视不在客厅,影音需求用投影解决。因为没吊顶没做石膏板,就用密度板搭了个窗帘盒,厚25cm,能同时装下窗帘和幕布。MUJI双人沙发距离幕布3.5米,带脚踏,躺在沙发里看投影无比享受。

▲客厅1.0版本
和餐厅相反,客厅采用无主灯设计:两排3米长的轨道射灯,各自距离墙面70cm,一共6盏射灯覆盖整个客厅区域,不过平时晚上开3盏就够了,每盏18瓦,色温4000K,沙发旁边有落地灯补充照明。

轨道有1米和1.5米两种长度规格,想要其他长度只能锯短或者对接,1米轨道适合装1~2盏灯,1.5米轨道适合装2~3盏灯,灯卡在轨道上即可接通电源,轨道距离墙面60cm左右,就有“展厅洗墙”的效果了。

后来为了娃爬行,茶几挪到一边,铺了爬行垫,平时全家人都一起坐地上。

▲客厅2.0版本
2.0版本能看到投影仪的位置:用支架挂在了屋顶上。预埋了投影仪用的电线和高清线,其中电线一端连到墙上开关面板,另一端把投影仪自带的电源线剪断,接上电线,这样投影仪就不再需要插座,按墙上开关能够直接控制。


▲客厅2.0版本
书柜上边放大人的书,下边是玩具和儿童书,娃能够到的地方都贴了防撞条。

再后来,娃会跑了,爬行垫撤掉,双人沙发也挪到一边去,茶几也换成了宜家格兰登系列的小茶几,目前客厅基本取代儿童房的地位,次卧只留了一张床给老人居住。

▲客厅3.0版本
养娃不易,自从沙发挪走,投影都很少开了……入住两年,现在孩子2岁多,待他长大,客厅终将回归1.0版本。
核心区一直在变来变去,但充当书房的工作区始终不变:一张书桌,两把椅子,一面软木板墙。

原木的显示器增高架和书桌仿佛融为一体,还有放手机、放水杯等强大的收纳功能,而且不用电脑的时候,能把鼠标键盘全部推进架子里面去,空出桌面。


明信片都是JUN自己拍摄的风景照,通过水滴形夹子挂在图钉上,这样明信片就不会被扎洞了。

4、阳台
客厅和阳台的交界处,为了防水,虽然不情愿还是铺了过门石。

选了样式最简单的、白色带斑点的人造石,和整个家的风格保持一致,不会太突兀。

全屋所有瓷砖都是同一款,墙砖也是同款地砖上墙,哑光的米色仿古砖,和原木一样,烘托出气氛是淡而温和的。

5、厨房
不透明毛玻璃的铝合金推拉门,落在过门石上,白色过门石、白色门套、白色门框、白色踢脚线和白墙统一。

橱柜用原木色门板+白色台面,整个厨房不到5平米,台面紧张无法避免,而且吊柜装得高了,用起来不太方便,应当和吊顶留一段距离的。

吊柜底下安装了感应灯,同时带有触摸开关,方便洗切照明。

台面上尽量多留插座,用了ABB的错位五孔插,可以两孔和三孔同时插上。

6、卫生间
多层置物架高效利用角落空间。宜家原版置物架只有原木色,为了和卫浴设备统一,淘宝了白色同款。

脸盆来自两个日本牌子,爱丽丝和NITORI,用了白灰米三种颜色,要是来几个花花绿绿的脸盆,日式风格或许会瞬间破功吧。

不同于 “日本人就算浴室再小,也要挤出一个浴缸的地方”,JUN觉得浴缸利用率低又占空间,所以没有装浴缸,浴帘后面还是中国家庭习惯的淋浴区。

7、主卧
衣柜是平开门的,如果用普通床头柜会阻挡衣柜开门,想到用边几代替床头柜,开衣柜门的时候把边几推向床即可。

边几底下配个收纳筐,增加收纳功能。

另一边空间宽裕,床头柜是常规款式,白橡木,纹理分明。

角落处竖了一只榉木挂衣架。

最后依然要说说灯。主卧的吊灯是北欧设计的经典之作——PH5吊灯,这款灯的设计理念就是“见光不见灯”,从外部看不到光源,用在卧室正合适,人在躺在床上不会被光线直射眼睛。

但是光源被遮挡,带来的弊端就是亮度不足,所以只靠一盏灯没办法照亮整个房间(这也是餐厅没有选择PH5吊灯的原因),床头需要补充一盏台灯。

以上。