
20万6个方法改造小户型,小卧室变大厨房

上海的老房子,总是有些局促感。虽然三个卧室,但客厅厨房都很小,还没有餐厅。
房子这么贵,更要把空间合理地利用起来。
房子的故事
城市:上海
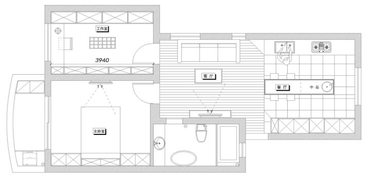
户型:三房一厅改两房两厅
面积:74平
花费:20W
屋主:陈八顿(女主)
每个家庭对于家的需求都不一样,八顿家,两人一狗的生活对于空间的要求很简单,要有一个能两人一起下厨的厨房,能摊开玩烘焙,又能存放自己的咖啡器具的角落。老公可以安静做手工的小工作间,狗子可以欢快奔跑的客厅。


改造后,北面的卧室变成了厨房。原来的厨房和客厅合并,变成一个大客厅。
客厅
原来的客厅,就一小块儿,狗都跑不开。八顿咨询了物业,敲掉了非承重墙,把原来的厨房和客厅合二为一(涉及到拆墙,一定要跟物业沟通,千万不要敲到承重墙)。

1、厨房变客厅
原来的厨房上方,有几个横梁,不能敲掉,八顿就把这块儿改造成了木栅栏灯。
栅栏灯木条是指接板切割的,宽10cm,长160cm,安装的时候,把木条钉在一块大的白色的板(整块指接板敷一层石膏板)上,再整块一起钉到木龙骨上面,然后再在木条之间的间隔装上T5灯管。

墙面上的挂画是自己搭配的,画框是宜家的,金属细边框,精致。
照片都是自己去新西兰玩的时候拍的,而且为了客厅色彩的统一,特意打印了黑白的照片。

2、水泥电视墙+隐形门
偏爱水泥色的八顿,在自己家的电视墙,用了一整面的灰色水泥板。卫生间的门也开在了这面墙上,但好好的电视墙贸然出现一扇门,突兀。
现在能看出卫生间的门吗?其实卫生间的隐形门就藏在电视的右边。

安装隐形门的时候,先在墙面上打一层木板,之后再在木板上面贴一层水泥板,隐形门特别需要注意的是,五金件一定要选择质量好的。

3、用家具营造大客厅的感觉
客厅已经尽可能在原户型的基础上扩大了,但空间仍然非常有限。如果客厅家具选择不合理的话,这个客厅,还是会有拥堵的感觉。
电视柜的选择上,八顿抛弃了有储物功能的柜子式电视柜,选择了通透的设计,不让客厅的空间显得拥挤。而且线条状的电视柜,跟木条状的屋顶木栅栏相对应,线条感十足。

小进深的灰色沙发,可以跟水泥色的墙面搭配起来,而金属小细腿,视觉上会有扩大空间的感觉。

客厅的进深也就3米,已经摆放了电视柜和沙发,就没打算在沙发前摆放茶几,想要摆东西?
各种灵活的小边几其实非常方便实用。


再在客厅里放上两个木桩当小茶几用,别致。

餐 厨
对于八顿两口子来说,餐厨区域是家庭非常重要的部分,要做饭,要烘焙。可是原户型,厨房非常小,餐厅根本没有。
4、卧室变厨房
考虑到自己的生活习惯,八顿把北面的卧室做成了开放式厨房,而且还在厨房里做了中岛,让厨房兼具餐厅的功能。

因为是卧室改厨房,所以需要煤气公司来改动管道,厨房地面也只好抬高了10cm。为了追求简约,整个厨房的布局,都是对称的。

八顿还在厨房凸起的边缘周围,做了一圈灯带,虽然很少开。

中岛的高度和左右两个操作台的高度一致,85cm,为了配合中岛的高度,选择了55cm坐高的吧椅。热水器藏在右边电器柜内。

经常自己做咖啡,所以用具都没有收起来,右边的台面摆放了自己的用具,随用随取。



主卧
客厅没做什么收纳的空间,收纳的重任就交给卧室了。主卧的面积其实也不大,传统的床+衣柜组合,可能会把小小的卧室塞得满满当当。
5、嵌入式衣柜
而且八顿还想在这个卧室做瑜伽,放婴儿床呢,最后订做了这种带嵌入式床体的衣柜。
把床的一部分深入衣柜里,床尾的空间就更多了。

橱柜选了白色的门板,跟白色的墙面有合体的感觉,削弱了衣橱的存在感。
在床两侧做了隐藏式的床头柜,非常能装,而且放东西会很有安全感,不用担心东西会掉下来。

床的两侧各有一个1.2米宽的衣柜,柜子深度55cm。床头柜占掉了衣柜内部很大一部分空间,剩余部分被八顿分成了3个挂衣区和2个抽屉。

还在卧室放下了一个电视柜,电视柜、床、的宽度都是1.5米。

卧室的阳台比较小,在这里装下了洗衣机,留给洗手台的空间超级小,找了很久才找到了这个迷你的不锈钢水槽。
没有选择在墙面上打洞装挂杆,因为怕把瓷砖打坏了,就把挂杆装在了柜子的底部。

阳台的阳光很好,sanji会经常来这里晒太阳。

工作室
目前还没有孩子,所以八顿他们就把次卧做成了自己的工作室。

木质的百叶窗,光线调节能力一流。

6、洞洞板作为装饰
书桌的一角,放上了黑色的洞洞板,还有同样黑色系的字母灯。

提到洞洞板,当然不能不提它的收纳能力了,不好搞的的戴森,一块洞洞板,就规规矩矩起来。

在八顿家,洞洞板不只有被用来收纳,更多的,还有装饰的作用。
一块洞洞板把老公的手工工具收纳得整整齐齐,还可以放上点儿空气凤梨,挂在墙上,就是一副装饰画。

卫生间
卫生间的面积其实也不大,可以做改动的空间也太小。
去选台盆的时候,一眼看中这个悬空的台盆柜,悬空的台盆柜,还装下了65cm宽的抽屉。

淋浴区,没有做麻烦的推拉门,各种卫生死角非常难打扫,只用了单块的玻璃。

为了让小小的卫生间显得更高大,墙面用了20*60cm的大块瓷砖。还在墙壁上做了一个壁龛,放洗浴用品更方便。

以上。