
什么样的装修风格会给人一种上档次的感觉?

省钱又不丑的北欧风!用平民的钱,装中产的逼
来看看这是不是你的菜。
房子的故事
城市:上海
户型:两居
面积:建筑面积100平
花费:30万
屋主:Jessica,辛辣逗逼的金融业营销汪,自嘲为「正在通往中产路上却不断摔跤的少女」一枚。
Jessica曾在挪威求学,受当地文化的影响,喜欢风格简洁的物品,装修时顺理成章地选择了北欧风。

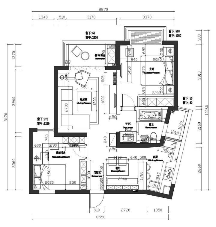
▲户型图

▲客厅毕业照

▲主卧毕业照
但是北欧风为什么会在国内大火呢?Jessica认为一是一二线城市普遍房价高、装修预算紧,二是国民审美确实在升级,于是以宜家为代表、省钱又不丑的北欧风开始泛滥。
虽然北欧风也有很多昂贵的家居品牌,但家庭装修普遍选择价格亲民的宜家、HAY以及网红店,不敢称「高大上」,好歹算「小清新」。

▲清新的客厅一角
北欧风追求「轻装修、重装饰」,主要靠软装搭配出美感,可以黑白灰性冷淡,也可以色彩斑斓有活力。

Jessica家可以说是彩色系北欧风的教科书,有灰墙白门、撞色家具、黑板墙、谷仓门、钨丝灯、细框装饰画、手工挂毯、水泥花盆和量天尺……
我们总结出Jessica家22个北欧风要素,童鞋们可以参考,看如何把北欧风装修得明亮活泼,又不失逼格。
玄关
1、防盗门
体现北欧风,从入户第一眼开始,挑个能做白色成品的防盗门品牌吧,对开发商标配的深红大门零容忍、不将就。

2、鞋柜
白门板配黑把手,是北欧风最常见的柜子外观。
鞋柜上下分离,可惜内部隔层的高度太高,每层鞋子上方的空间都浪费了。Jessica建议,装修时一定要和施工方核对每一个尺寸,越是细节处,越容易被忽略。

3、中央空调
北欧风要求视线范围内能简则简,因此藏在吊顶里不占地、不露脸的中央空调,是Jessica家首选。这里是一拖四中央空调的其中两个出风口,一边用于客厅,一边用于餐厅。

▲中央空调出风口,分别用于餐厅(左)和客厅(右)
至于能耗,Jessica说去年冬天时,只要家里有人就会打开,每月电费在400元以内。
客厅
4、阳台
让客厅开阔的秘诀有三:一是打通客厅和阳台,二是不设玻璃门隔断,三是把客厅的木地板一直铺到阳台……这样,空间在视觉上能得到最大延伸。


白天看电视有反光,就把窗纱遮起来。

5、窗帘
它应该是客厅里最低调的配角,千万别选花花绿绿的款式。Jessica家用了沉稳的大地色窗帘,搭地板、搭木家具、搭装饰画、搭吊灯……你能找出违和感算我输。


6、沙发
三人沙发的灰蓝色呼应背景墙,再用单人沙发的姜黄色狠狠地「撞」一下。至于为什么是姜黄色,看看家具脚、吊灯杆、装饰画框、金属花盆,你自然会明白。

7、抱枕
用抱枕和鲜花的颜色呼应沙发,不过,你要是觉得应该黄色沙发上放黄色抱枕……当我这一条没说。

8、金属材质
用在吊灯杆、边几脚、收纳盘、装饰画框和花盆上,根据「物以稀为贵」的原则,小面积点缀出精致感。如果家里变成金灿灿一片,只会有「土」而不是「豪」的效果。


▲金属材质的吊灯杆和边几脚

▲金属材质的装饰画框和花盆
9、新中式家具
运用了中式「提梁」元素的电视柜和边柜 ,线条简洁,注重表现原木的质感。新中式和北欧风,向来是一对和谐的好基友。

▲电视柜和边柜

▲电视柜

▲边柜
10、绿植
北欧风的绿植追求高大壮,像量天尺这种一根大绿柱子最受欢迎。然而,这几年量天尺的价格被炒得水涨船高,连盆带花八百八,不要拉倒……

舍不得银子的童鞋们,还有琴叶榕、龟背竹、虎皮兰等你来宠幸~

▲琴叶榕(左)、龟背竹(中)、白虎皮(右)
厨房&餐厅
装修时,Jessica最庆幸的决定都在这里了:开放式厨房、卡座和黑板墙。


11、开放厨房
Jessica说一边做饭一边和朋友扯皮,这感觉太爽。

▲从厨房看向餐厅
开放式厨房最担心的油烟问题,一个大吸力油烟机就能解决。厨房比较小,就把烟机、灶具、洗碗机集中布置,让橱柜有更多储物空间。

▲烟机(上)、灶具(中)、洗碗机(下)
拐角处正好放下水槽,为了使用水槽方便,把右边的台面做得稍窄。

12、卡座
北欧风不只体现在色彩和装饰物上,还要把简单随性的生活理念贯彻到底,比如你问Jessica为什么想要卡座?她会说因为普通椅子看腻了呀(奏是这么任性)

▲卡座
卡座直接交给木工定做,座位宽50公分,可以掀开,下方用于储物。无心插柳的结果是,餐桌区竟然成了利用率最高的角落,除了用餐,Jessica和老公还都喜欢在卡座上加班……

13、黑板墙
家里没一面黑板墙,都不好意思说自己是北欧风……
至于让人苦恼的「收边」问题,Jessica家的做法是刷漆之前,先让木工在墙上钉个框,喷上白漆(她家的木工师傅也是hin辛苦……)

主卧
14、门把手
北欧er似乎都有拆掉原配门把手的癖好,Jessica就在白色门上,搭配了蛋形的金属门把手。

15、墙漆
卧室用低饱和度的色调,营造放松的休息氛围,背景墙刷成深蓝,另外三面墙浅蓝,屋顶留白。

▲蓝色墙漆
16、床头吊灯
灯罩的薄荷绿色明度高,在暗色背景墙的衬托下脱颖而出。Jessica家很少在床头阅读,光源就用了美貌的钨丝灯,亮度低、不刺眼。

17、挂毯
如果床头挂画拿不准要一幅还是几幅、大幅还是小幅,干脆换成挂毯吧,手工编织的天然材质,用树枝串起来更美呢。

18、衣柜
木工打的衣柜,内部挂衣区太少,实用性不佳。Jessica遗憾地说,如果给我重来一次的机会,一定要找专业厂商整体定制,哼~

卫生间
19、干湿三分离
见过洗漱区+浴缸区+淋浴间的干湿三分离卫生间吗?这可是Jessica最得意的设计。

20、淋浴间
原本只有干湿两个分区,但为了塞下1.5米浴缸,把湿区连接的家务阳台打通,改成了朝南的淋浴间。在大阳台上日常晒衣,偶尔冲澡,无比欢畅~

21、浴缸
浴缸与马桶、洗衣机集中在同一区域,Jessica说忙了一天回家泡个热水澡,泡到酸劲儿散了、晕乎乎进被窝的感觉真好。

▲浴缸和马桶、洗衣集中布置


浴缸每周至少用2、3次,为了清洁方便,上方安装了花洒。用完浴缸,洗涤剂喷一喷,刷子刷一刷,花洒冲一冲,快速搞定。
至于站在浴缸里冲澡到底好不好呢?Jessica说那样容易滑倒,体验很差,最好还是分开布置。

▲美美地泡个澡吧~
22、台上盆
洗漱区用了台上盆,只要足够深,就不会溅水。至于民宿常用的那种浅盆,才叫真正的华而不实。

不管在别人眼中,北欧风是质朴还是装逼,Jessica说家就应该我喜欢我做主,因为疲惫和迷茫时,家是最后的避难所。
有撕逼的闲功夫,还不如插一束鲜花照亮家里,也照亮心情。

最后放上Jessica家的新成员,傻萌傻萌的金毛犬「田田」,Jessica爱叫它「田田宝宝」,简称「田宝」。
元气活泼的田宝,也在元气满满的家里,开启了幸福的新生活。

以上。