
折腾永不停止,装修永未完成!不要风格要喜欢!
房子的故事
城市:济南
户型:三居
面积:建筑面积143平
屋主:Nye(女主),Bin(男主),跳跳(喵主)
异地很多很多年的Nye和Bin终于走向了婚姻,不到一周时间,就定下了现在的房子,装修的事情,也被提上了日程,该怎么装修呢?

Nye说,装修不是一个一蹴而就的过程。设计阶段要想好,因为硬装定了很难改,软装入住后慢慢了解自己的需求,再慢慢添置,这样家才会越来越适合你。折腾永远不停止,装修永远未完成。

▲Nye家客厅的多次变迁
入住一年半,几乎每个月客厅都有新变化,慢慢填满一个家的感觉真的特别棒,你会觉得这个房子慢慢变成你的家。
买点儿水洗棉,用荷叶边做沙发盖毯,原来的沙发一秒变身白沙发。

然后简单换几个抱枕,把之前的沙发盖毯变成地毯,一个新客厅的诞生了。

现在,我们来看看Nye到底是怎么折腾她的家。
玄 关
害怕玄关容易脏,所以贴了壁纸,玄关是Nye家唯一没有阳光直射的区域,选了明媚的黄色。

玄关墙留了挂衣区,选了黑胡桃木做的挂衣钩,尺寸和设计细节,都是冲着实用做的,挂衣钩上面还可以放点儿小东西~

开门正对的玄关空出放钥匙、包的地方,小盘子放钥匙,小杯子放硬币。贴了软木板,可以放点儿照片,额,强迫症请自动忽略软木板的缝隙…

柜子的这部分,原来是凸出的墙,敲掉了,做一个柜子来当墙。柜子的下方放鞋子,右上挂出门要换的大衣。

客 厅

客厅是Nye折腾最多的地方,想要一个休闲自在有围合感的客厅,除了圆形的茶几,地毯、懒人沙发、抱枕是一定要的,朋友们来了,抱枕往地下一扔,地毯上一坐,大家围在一起打牌聊天,不能再美好。

家里的跳跳其实不太折腾地板,Nye自己倒是经常折腾自己家的家具,挪过来挪过去的,娇气的实木不适合她,又不喜欢冷冰冰的地砖,于是选了这款耐磨好打理,不显脏的强化橡木地板。
爸妈劝Nye用地砖,可是Nye不干,就是喜欢木地板。怎么办,总不能吵一架吧?于是她开始了她的歪理邪说……
爸妈:这个地板不耐磨,跳跳会弄花的……
Nye:强化地板喔,耐磨是工业级别的。
爸妈:木地板不防水……
Nye:谁家天天泡水里呀?
爸妈:木地板不环保……
Nye:诺,这是这个木地板的环保系数
Nye:搬家还可以把木地板拆走喔,地砖就长地上啦
Nye:……

客厅主灯选择了电扇灯,初夏的时候,是不是有开空调太冷,关空调太热的感觉呢?开会儿风扇,轻松解决。
不过nye说,客厅的照明其实很少会用到这个风扇灯,开灯的时候,大概只有两三次吧(是的,就是在摆拍照片的时候。)
客厅的照明,有墙上的灯带和射灯完全够用了,小户型的朋友,如果想用射灯和灯带代替主灯,完全不用担心照明不够。

拥有一面书墙一直是Nye的梦想。
Nye认为,不一定要把书禁锢在小小的书房,书应该更好的融入日常,于是她把自己客厅的电视墙做成了书墙,本来都不打算要电视的,但是在耐不住Bin的反对意见,事实证明,真的很少会打开电视。

电视墙还有壁炉的调调,下面放上一些原木和自己喜欢的画,浓浓的森林味道。

就是喜欢小细腿款式的家具。小细腿会显得空间更大,不会很拥挤。

客厅墙壁是保险又百搭的大白墙,挂上自己喜欢的照片和画作。代价就是需要在墙上打洞、钉钉子了,不过画的位置都是固定的,打洞就打洞吧。

挂画不一定非得用钉子,还有其它方法:
1、粘胶、吸盘。选择质量好一点儿的。
2、无痕钉。不同规格可以分别承受不同重量,一般最大承重为20斤。挂钩上有几枚非常坚硬和细小的钢针,不会把墙订出大口子。
3、吊轨。使用轨道挂画器,从顶面上垂下吊线或有装饰性的绳、链等,把画吊起来,同时吊一幅或多幅都可以的。
客厅是家庭生活的核心区域,有很多公共产品在这个区域,如果这些东西没有收纳的地方,一个乱糟糟的客厅是免不了的。

客厅的边柜上摆放一堆圣诞装饰,自己做的永生花放在金边玻璃盒里,最右边是咖啡机,很像ET外星人。

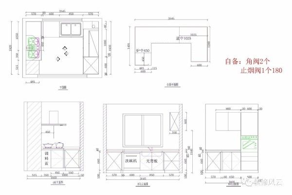
厨 房
Nye家的厨房超级小,还要塞下洗碗机、烤箱、净水器、垃圾处理器、燃气热水器,还需要大抽屉……
下面是厨房的设计图,动线是按照冰箱取食材—简单处理—洗净—切菜备菜—炒菜来设计的。习惯在台面上拿东西的Nye把设计图中的调料篮去掉了,自己的家就要按照自己的习惯来装修~

考虑洗碗机和垃圾处理器的时候,Bin觉得没啥用,不过这个反对意见被Nye无视了。

他
他也
他也是
他也是个
他也是个人
他也是个人啊!
……
现在呢,Bin逢人就推荐垃圾处理器和洗碗机,收拾8个人的聚餐,10分钟搞定。
原本Nye还想加入岛台,无奈太小了,只能选了宜家的厨房推车,上面是用的吸盘,挂常用的烘焙工具。

小小的厨房还塞下了嵌入式烤箱,可是抽屉也想要,怎么办?
高柜高柜高柜,抽屉是厨房必不可少的,厨房杂物太多,抽屉能解决你的烦恼。吊柜下面留了灯线,用蓝丁胶粘了感应灯光,备菜更加方便。
挂钩是宜家的,挂小锅什么的,能挂的挂起来也是收纳一大要义。

因为厨房实在太小,就把橱柜和冰箱之间的墙体打掉了,放了铁架,铁架上可以放一个小小的微波炉,下面配了宜家的收纳盒和爱丽思的抽屉,放烘焙用具和各种收纳袋子。

餐 厅
想要一面灰色的墙,怎么办?
那就搞一个,Nye把餐厅左边的墙涂成了灰色。
家里照片太多了,摆不下怎么办?再来一个软木板墙,照片随便摆。
餐厅上方有横梁,不好看,索性做了几个假横梁,贴上仿木皮。

爱折腾的Nye,就是喜欢各种折腾家里的布局,下面是餐厅现在的样子,她把餐桌横过来了,挂毯是她自己编的。

餐厅不大,Nye还有瓶瓶罐罐收集癖,为了收纳的空间能多一些,加了一个餐边柜和搁板。厨师机的变压器放在柜子下面刚刚好。

虽然有强烈的拖延症(拖小编这篇稿子,拖了一个月吧),不过面对吃喝玩乐,Nye可是绝不拖延。
用周末用半天的时间,做上一堆好吃的,然后呼朋引伴来吃,时间不就是要用来浪费在吃喝玩乐上的么?

主 卧
卧室就是简简单单放松就好。
谁说床头一定要床头柜呢?Nye不喜欢床头柜,就是喜欢灵动的边几。毕竟你不能把床头柜搬到客厅吧,边几可以!!!

也因为不喜欢占用床头的空间,台灯和落地灯毫无疑问被Nye无情的拒绝,壁灯不占用床头的空间,可以更随意的玩耍。

夜晚的床头,香薰机突突冒着水雾,杯子里刚刚倒好热水,Bin在旁边笑着看Nye拍下这张照片。有点儿乱,也有点儿温暖。(被秀一脸恩爱)

Bin这边的床头,Nye自己DIY了一个网红柜,可以放点儿内衣或者其他杂物。

网红柜子DIY步骤:
1、先确定好自己柜子的尺寸,并合理规划布局,勾勒好图形。
2、将美纹纸贴在需要遮挡的地方。
3、使用的是丙烯颜料。调色,上色。
4、最后撕掉美纹纸即可。
女士怎么能没有一个衣帽间?
Nye在齐平主卫墙面做了个小小的衣帽间,正面,右边上下都是挂衣区,顶上放真空处理的过季被褥。左边分了六个隔断,放叠放的床品、睡衣、毛巾等。

衣帽间内部布局要注意:
1、顶部空间,一般很难碰到,所以隔一些大的空间出来,放不经常用到的被褥或者是行李箱。
2、手能够到的空间,尽量多做一些隔断。隔断太少,折叠的衣服都堆砌在一起,不好拿放。
宜家纸灯,Nye也是喜欢了很久,有了新家,当然要把它也放进去。

家嘛,就是堆砌自己喜欢东西的杂货铺,风格什么的,别管啦。家里最喜欢的东西,莫过于这幅画了。
Nye这样说:「很久之前第一次在宜家看到就喜欢的不得了,从此每次去宜家都要停在它面前,暗暗说总有一天我会拥有一个房子来放你。」
每天早上醒来,一睁眼,看到透过树叶的阳光,就不自主的想微笑。

阳光好的午后和跳跳。

宜家地毯放在床尾,光脚踩特别舒服。

次 卧
遥望次卧,九斗柜移到了这里,超级能装。

次卧,是给父母预留的,所以漆面的颜色选了沉稳一点的浅咖,现在后悔了,老气。捡的树枝放到捡的瓶子里,拾荒爱好者。

Nye的经验就是,自己的家,一定要选自己喜欢的东西,不然肯定会后悔。
次卧的床就是这样,急着入住,随便买了家人要求的箱体床,占空间,也没有多少东西要塞里面。
现在已经被Nye挂闲鱼很长时间了,无人问津。

书 房
最小的卧室,兼具书房和客房,买的最便宜的小铁床,打算以后全部清空做儿童房,就放个床垫地毯,然后再按照小朋友的喜好来买家具,让小朋友随意玩。

树枝是去林场捡的,挂上H&M和ZARA的打折圣诞装饰。窗帘是H&M浴帘,森林爱好者的Nye一眼就爱上了,拿来当窗帘吧。(气球灯也是中意了很久的喔,你发现了吗)

右边是Bin学习的书桌,简单找了点东西装饰一下。(Bin,你终于在家里有存在感了!)

卫 生 间
卫生间是Nye最不满意的地方,在小编的死缠烂打之下,她只给了一张加了三层滤镜的照片。额,好吧,Nye说这是恩赐。
因为预算问题,没有拆掉开放商贴的卫生间瓷砖,导致整个卫生间都破罐子破摔。还为了增大收纳的空间,在马桶上方放置了顶天立地的置物架,好用是好用,可是真的有点儿丑。

最后,风格真的重要么?在Nye心里,风格没那么重要,适合和舒适才是最重要的。毕竟住在里面的是我们自己,不是看客呀。所以Nye的装修原则就是,喜欢什么,就往自己的家里堆砌什么。
以及,本文的另一个主题是:请找出所有照片中卖萌的跳跳。什么???没找到?那我再给你来两张养养眼。


以上。